Local

Work is starting on Kennewick’s urban village. Vista Field is about to take off again

Five years after painters splashed big white “X”es across the runways, life is about to return to Kennewick’s 103-acre former municipal airport.

The Port of Kennewick breaks ground this week on the first phase of an ambitious makeover to re-create Vista Field as an urban village in the heart of town.

The public is invited to celebrate the start of the long-planned project at 10 a.m. Monday at 6600 W. Deschutes Ave., near the intersection of West Okanogan Avenue.

The Port of Kennewick has reached a preliminary agreement with the Arts Center Task Force to sell 2.2 acres at the heart of the Vista Field redevelopment project to build an 800-seat performing arts center.
The Port of Kennewick has reached a preliminary agreement with the Arts Center Task Force to sell 2.2 acres at the heart of the Vista Field redevelopment project to build an 800-seat performing arts center. File Tri-City Herald

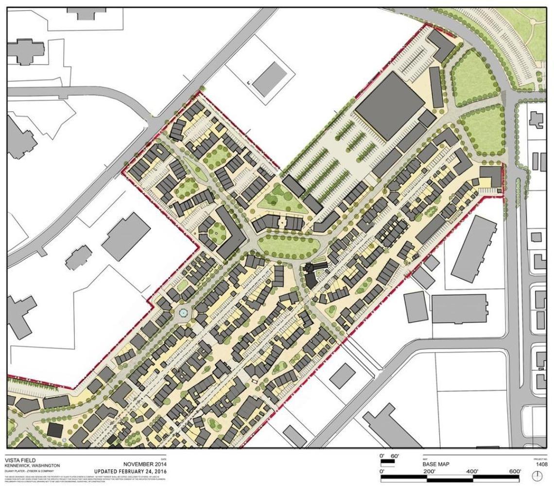
The event kicks off the first phase of what will eventually be a walkable neighborhood with homes, offices, stores, restaurants, parks and a canal-like water feature.

In March, the port awarded a $4.9 million contract to Richland-based Total Site Services to build roadways, utilities, sidewalks, a water feature and the other necessary, if unsexy, amenities needed to prepare land for future development.

Vista’s future is centered on an 800-seat, privately funded performing arts center.

April 20, 2018 - A conceptual drawing shows a canal feature of the future Vista Field redevelopment project.
April 20, 2018 - A conceptual drawing shows a canal feature of the future Vista Field redevelopment project. Port of Kennewick

The nonprofit Arts Center Task Force signed a letter of intent with the port for a 2.2-acre parcel in the center of Vista Field more than two years ago. It is raising money for its project.

The redevelopment will transform a windswept, fenced airport into a walkable, dense neighborhood that connects to the surrounding street grid.

The Port of Kennewick and Total Site Services break ground Monday on a $4.9 million infrastructure project that will set the stage to redevelop Vista Field, the 103-acre former municipal airport in the heart of the city.
The Port of Kennewick and Total Site Services break ground Monday on a $4.9 million infrastructure project that will set the stage to redevelop Vista Field, the 103-acre former municipal airport in the heart of the city.

Once the site is ready, the port will sell lots to private developers, who will construct buildings according to the master plan and Tuscan-style concept laid out by the port.

The Vista Field neighborhood could become home to 1,200 residences, 311,000 square feet of retail and restaurant space, 500,000 square feet of office space and 200,000 square feet of other space as well as 8.5 acres of parks.

It is expected to generate $410 million in investment in buildings and $50 million in infrastructure.

If $460 million was included in the 2019 property tax bills, it would yield about $4.7 million in taxes, based on the current tax rate of $10.18 per $1,000 levied on much of Kennewick.

The port closed the general aviation airport to airplanes at the end of 2013.

The Port of Kennewick released conceptual drawings for the future Vista Field mixed-use development Thursday. The port is borrowing the Dutch concept of a living street, or “woonerf,” for its transportation grid.
The Port of Kennewick released conceptual drawings for the future Vista Field mixed-use development Thursday. The port is borrowing the Dutch concept of a living street, or “woonerf,” for its transportation grid. Port of Kennewick

The move was controversial but the port concluded it was too expensive to operate the facility.

Unlike the airports in Pasco and Richland, Kennewick received no funding from the Federal Aviation Administration.

The prospective development has attracted developers to the area already.

The Tri-City Chuck E. Cheese’s restaurant moved to 6340 W. Rio Grande Blvd., next to Vista Field, in September after 36 years in rented space at the Richland Wye.

Owner John Corbin said his family invested $4 million in the new building after selecting the site to be close to Vista Field and the nearby sports fields at Lawrence Scott Park.

Chuck E. Cheese’s isn’t the only business staking its future on Vista Field.

Yakima Valley Farm Workers, one of the region’s largest community health organizations, intends to construct a $20 million medical and dental clinic across the street from Chuck E. Cheese’s, almost on top of the old runway.

The nonprofit clinic said it will break ground in 2020 and will employ 10 to 13 physicians, two dentists and 80 to 90 support staff at the clinic.

WC
Wendy Culverwell
Tri-City Herald
Wendy Culverwell writes about local government and politics, focusing on how those decisions affect your life. She also covers key business and economic development changes that shape our community. Her restaurant column and health inspection reports are reader favorites. She’s been a news reporter in Washington and Oregon for 25 years.
Get one year of unlimited digital access for $159.99
#ReadLocal

Only 44¢ per day

SUBSCRIBE NOW